︎




















Projets

à propos

parcours

Contact














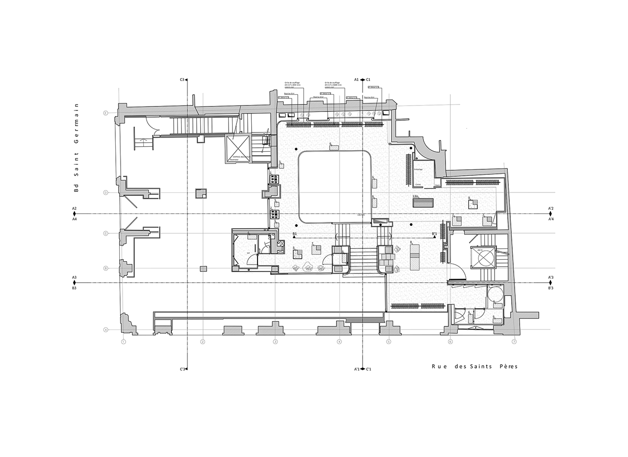
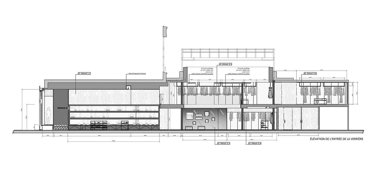
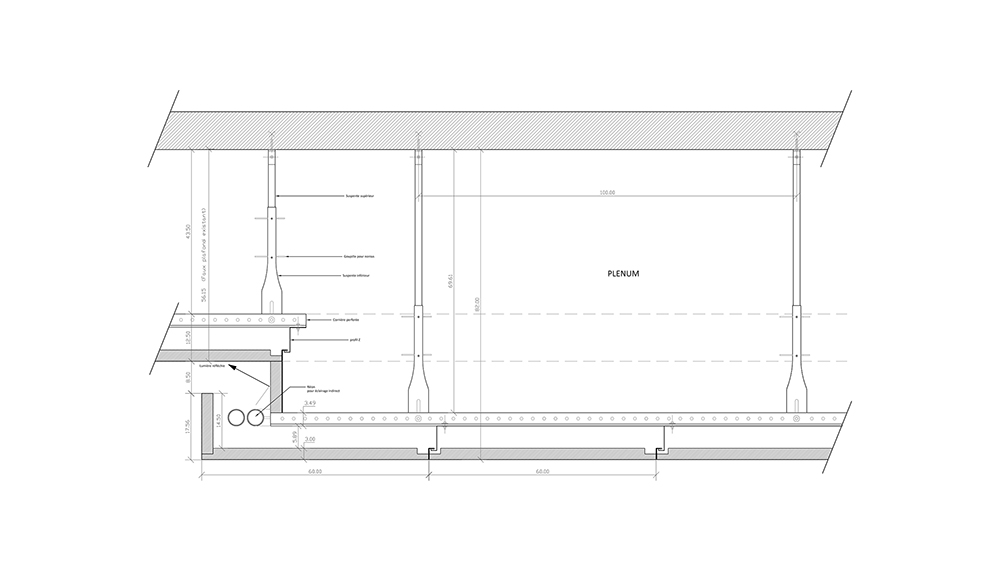
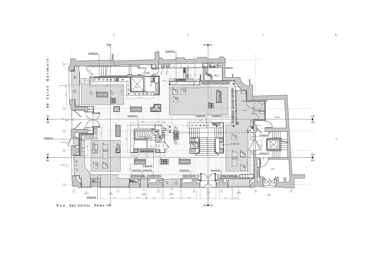
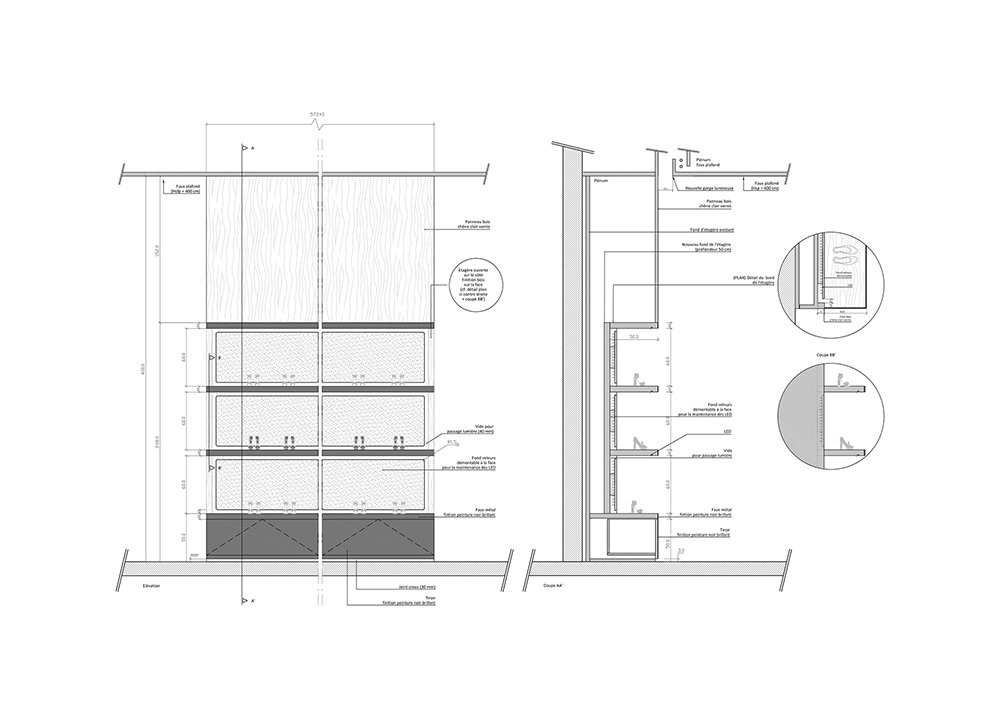
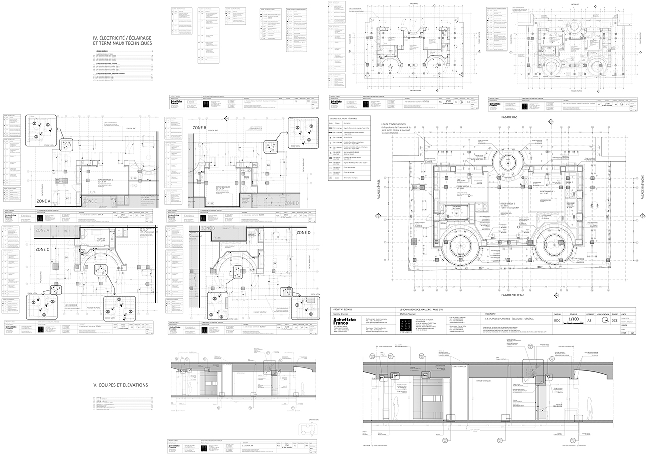
Dessinateur du DCE COMPLET pour Schwitzke France - 80 pages - Suivi et synthèse des lots techniques Dessinateur du DCE complet pour Schwitzke France - 80 pages - Suivi et synthèse des lots techniques Dessinateur du DCE complet pour Schwitzke France - 80 pages  Suivi et synthèse des lots techniques Dessinateur du DCE complet pour Schwitzke France - 80 pages  - Suivi et synthèse des lots techniques Dessinateur du DCE complet pour Schwitzke France - 80 pages  - Suivi et synthèse des lots techniques Dessinateur du DCE complet pour Schwitzke France - 80 pages  - Suivi et synthèse des lots techniques Dessinateur plans d'execution pour Atelier UTO (Tous droits réservés) - boutique Sonia Rykiel 500m2 - Saint Germain des prés - Paris FR- Crédits photo Jules Rodet Dessinateur plans d'execution pour Atelier UTO (Tous droits réservés) - boutique Sonia Rykiel 500m2 - Saint Germain des prés - Paris FR - Crédits photo Jules Rodet Dessinateur plans d'execution pour Atelier UTO (Tous droits réservés) - boutique Sonia Rykiel 500m2 - Saint Germain des prés - Paris FR - Crédits photo Jules Rodet Dessinateur plans d'execution pour Atelier UTO (Tous droits réservés) - boutique Sonia Rykiel 500m2 - Saint Germain des prés - Paris FR - Crédits photo Jules Rodet Dessinateur plans d'execution pour Atelier UTO (Tous droits réservés) - boutique Sonia Rykiel 500m2 - Saint Germain des prés - Paris FR - Crédits photo Jules Rodet Dessinateur plans d'execution pour Atelier UTO (Tous droits réservés) - boutique Sonia Rykiel 500m2 - Saint Germain des prés - Paris FR - Crédits photo Jules Rodet Dessinateur plans d'execution pour Atelier UTO (Tous droits réservés) - boutique Sonia Rykiel 500m2 - Saint Germain des prés - Paris FR - Crédits photo Jules Rodet Dessinateur plans d'execution pour Atelier UTO (Tous droits réservés) - boutique Sonia Rykiel 500m2 - Saint Germain des prés - Paris FR - Crédits photo Jules Rodet Dessinateur plans d'execution pour Atelier UTO (Tous droits réservés) - boutique Sonia Rykiel 500m2 - Saint Germain des prés - Paris FR - Crédits photo Jules Rodet Dessinateur plans d'execution pour Atelier UTO - boutique Sonia Rykiel 500m2 - Saint Germain des prés - Paris FR - Crédits photo Jules Rodet Dessinateur plans d'execution pour Atelier UTO (Tous droits réservés) - boutique Sonia Rykiel 500m2 - Saint Germain des prés - Paris FR - Crédits photo Jules Rodet Dessinateur plans d'execution pour Atelier UTO (Tous droits réservés) - boutique Sonia Rykiel 500m2 - Saint Germain des prés - Paris FR - Crédits photo Jules Rodet Dessinateur plans d'execution pour Atelier UTO (Tous droits réservés) - boutique Sonia Rykiel 500m2 - Saint Germain des prés - Paris FR - Crédits photo Jules Rodet Dessinateur plans d'execution pour Atelier UTO (Tous droits réservés) - boutique Sonia Rykiel 500m2 - Saint Germain des prés - Paris FR - Crédits photo Jules Rodet Dessinateur plans d'execution pour Atelier UTO (Tous droits réservés) - boutique Sonia Rykiel 500m2 - Saint Germain des prés - Paris FR - Crédits photo Jules Rodet Dessinateur plans d'execution pour Atelier UTO (Tous droits réservés) - boutique Sonia Rykiel 500m2 - Saint Germain des prés - Paris FR - Crédits photo Jules Rodet